Používame cookies

Súbory cookie a ďalšie technológie sledovania používame na zlepšenie vášho zážitku z prehliadania našich webových stránok, na to, aby sme vám zobrazovali prispôsobený obsah a cielené reklamy, na analýzu návštevnosti našich webových stránok a na pochopenie toho, odkiaľ naši návštevníci prichádzajú. Viac info

BAŠKA - pozemok so stavebným povolením, len 6 minút od KVP

  • Exkluzívna ponuka

Popis nehnuteľnosti

Zdieľať na Facebooku

*** ZVÝHODNENÁ CENA platí do 31.5.2026 *** Ing. Dávid Šomodský a RR reality Vám ponúkajú na predaj stavebný pozemok v obci Baška v lokalite Baška - Borovica, veľmi žiadaná lokalita len 6km od Košíc.

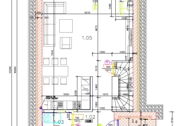
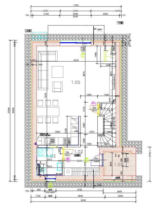
V cene je aj projekt na výstavbu 2-podlažného rodinného domu s právoplatným stavebným povolením. Možná úprava projektu počas výstavby, ešte pred kolaudáciou (Zmena stavby pred dokončením).

Parametre projektu:
● Úžitková plocha domu 121,9m2 + 4,7m2 balkón
● Zastavaná plocha 84,6m2
● Stavebný materiál tehla
● Obývacia izba s kuchyňou, 3x izba, balkón, kúpeľňa, 2x wc, komora, tech. miestnosť

Pozemok je vedený na LV ako záhrada, avšak parcela je zahrnutá v územnom pláne. V okolí sú postavené a skolaudované rodinné domy.

Na pozemku je postavená podpivničená 2 podlažná murovaná chata z tehál so súpisným číslom, zastavaná plocha 18m2, úžitková cca 30m2 + pivnica. Zakopaná 7m3 nádrž na vodu s rozvodom do chatky.

Chata môže slúžiť na rekreáciu do doby výstavby, pivnica a nádrž budú využité aj v rámci novej stavby pri základoch.

Parametre pozemku:
● Výmera parcely 364m2
● Rozmery pozemku 15m x 25m (rovinatý)
● Prístupová cesta poľná (spevnená)
● Parcela je zahrnutá v platnom územnom pláne na výstavbu RD
● Index zastavanosti 30%
● V osobnom vlastníctve, bez tiarch
● IS v dosahu: obecný vodovod, kanalizácia, elektrina

Zriadená elektrická prípojka 230/380V, popred pozemok vedie kanalizácia (realizovaná obcou 2023), realizácia verejného vodovodu v réžii obce (v štádiu projektovej dokumentácie).

******** Možná výmena nehnuteľnosti za byt v Košiciach ********



V prípade ak Vás naša ponuka zaujala, neváhajte kontaktovať makléra, veľmi radi si s Vami dohodneme osobné stretnutie. Radi Vám bezplatne pomôžeme aj s možnosťami financovania.

Certifikovaný realitný maklér Ing. Dávid Šomodský

tel. 0911 126 167

NAŠA CENA JE KONEČNÁ, BEZ AKÝCHKOĽVEK SKRYTÝCH POPLATKOV. V CENE JE UŽ ZAHRNUTÝ AJ KOMPLETNÝ PRÁVNY SERVIS, VYPRACOVANIE ZMLUVY, POPLATKY SPOJENÉ S PREVODOM VLASTNÍCKYCH PRÁV

Vlastnosti

Status:
aktívne
Vlastníctvo:
osobné
Plocha pozemku:
364 m2
Typ zeme:
rovina
Celková plocha:
364 m2
115 000 €
Interné ID: P004DASP
Ulica: Baška - Borovica
Obec: Baška
Okres: Košice - okolie
Kraj: Košický kraj
Druh: Pozemky
Typ: Predaj
Typ pozemku: Pozemok pre rodinné domy

Radi Vám poradíme