
VÝCHODNÉ MOKRANCE, bungalov 139m2, pozemok 673m2, komplet IS
- Predaj
- Rodinný dom
- 673 m2
- Mokrance
Ing. Dávid Šomodský a RR reality Vám exkluzívne ponúka na predaj 5 ročnú zariadenú novostavbu 4-izbového rodinného dom typu bungalov v obci Hodkovce vzdialenej len 12km (12 min jazdy autom) od Košíc (OC Optima).
VIDEO:
https://www.youtube.com/shorts/cph15HyZFfA
Dom sa nachádza na okraji obce na pomerne novej ulici, ktorá je už zastavaná novostavbami.
● Tehlová zabývaná novostavba kolaudovaná pred 5 rokmi
● Dokončený exteriér: upravená záhrada, 2x parkovacie miesto, elektrická brána na diaľkové ovládanie, chodníky, oplotenie
● Na terase zámková dlažba a bioklimatická pergola s nastaviteľnými strešnými lamelami (inštalovaná pred rokom)
● Dom na kľúč pripravený k nasťahovaniu (zariadenie ktoré nie je vstavané - podľa dohody)
● Inžinierske siete: obecný vodovod, elektrina, optický internet od Telecomu
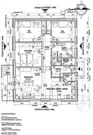
POZEMOK: 553 m2, pravidelný obdĺžnikový tvar o rozmere 27m x 21m
Plocha interiéru 102 m2 + 20 m2 krytá terasa
Pochôdzne podkrovie slúžiace ako úložný priestor cca 20 m2
Zastavaná plocha je 133 m2
TECHNICKÝ OPIS: stavebný materiál obvodového muriva je z tehál Porotherm Profi hr. 300mm + kontaktné zateplenie EPS 180mm, zateplenie sokla + povrchová úprava marmolit, vnútorná nosná stena 250mm, zateplenie stropnej konštrukcie je z minerálnych vlákien hr. 180mm, okná s izolačným trojsklom (5-komorové), strešná konštrukcia je valbová s krytinou Bramac.
Vykurovanie zabezpečené elektrickým kotlom napojené na teplovodné podlahové vykurovanie, KLIMATIZÁCIA, k dispozícii je aj komín (možnosť osadiť krb, kachle).
DISPOZÍCIA: Vstupná chodba (zádverie), odkiaľ je vstup do technickej miestnosti, obývacia izba prepojená s kuchyňou, z obývacej izby je výstup na terasu cez francúzske okno, z kuchyne je vstup do komory, 1x samostatná toaleta s umývadlom, 1x kúpeľňa s dvojumývadlom, sprchovacím kútom a toaletou, 3x izba.
Kuchynská linka na mieru so vstavanými spotrebičmi (mikrovlnná rúra, indukčná varná doska, el. rúra, umývačka riadu), samostatne stojaca americká chladnička s výrobníkom ľadu.
V prípade ak Vás naša ponuka zaujala, neváhajte kontaktovať makléra, veľmi radi si s Vami dohodneme osobné stretnutie.
Certifikovaný realitný maklér Ing. Dávid Šomodský
Tel.: 0911 126 167
© Text a fotografie sú autorským dielom a majetkom realitnej kancelárie RR reality.
NAŠA CENA JE KONEČNÁ, BEZ AKÝCHKOĽVEK SKRYTÝCH POPLATKOV. V CENE JE UŽ ZAHRNUTÝ AJ KOMPLETNÝ PRÁVNY SERVIS, VYPRACOVANIE ZMLUVY, POPLATKY SPOJENÉ S PREVODOM VLASTNÍCKYCH PRÁV.
Interné ID: | P097DASD |
---|---|
Ulica: | Hodkovce |
Obec: | Hodkovce |
Okres: | Košice - okolie |
Kraj: | Košický kraj |
Druh: | Domy |
Typ: | Predaj |
Typ domu: | Rodinný dom |
Iné: |